Leírás
Folyamatos üzemű, digitális, idő- és mennyiségvezérelt duplaoszlopos ipari vízlágyító berendezés, 2×300 liter kationcserélő gyantával, 1008 m3x°dH/regenerálás/oszlop kapacitással, 14 m3/h átfolyásig, 1,5″ csatlakozással.
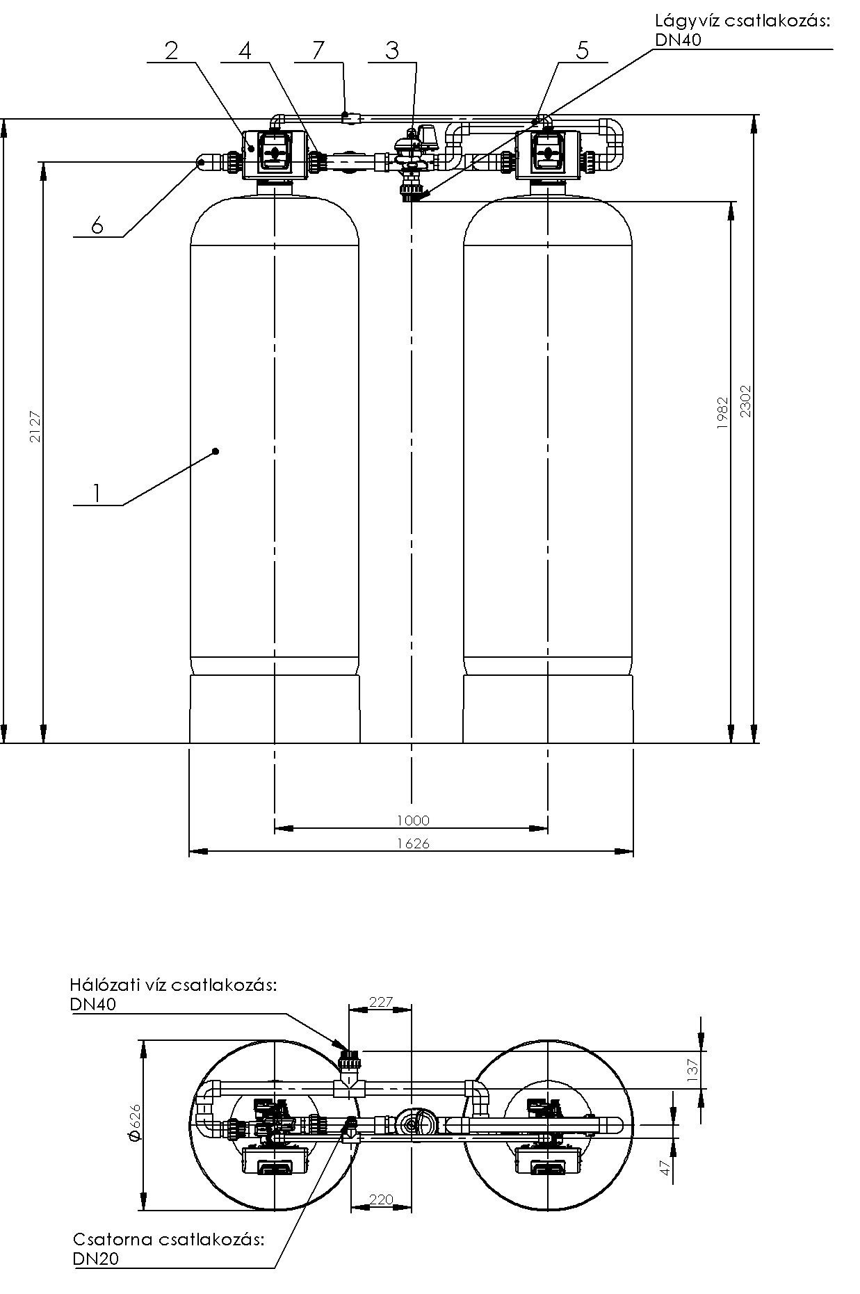
Az AQUAMATIC 600 DUPLEX ipari vízlágyító berendezés kétoszlopos kivitelben érhető el, a lágyvíz ellátást folyamatosan képes biztosítani.
A vízlágyító berendezésben a kemény víz ioncserélő műgyantatölteten áramlik keresztül.
A folyamat során, a víz keménységét okozó kalcium és magnézium ionok a gyantatöltetben lévő nátrium ionokra cserélődnek ki. Az így kezelt víz 90 ºC hőmérsékletig nem okoz vízkőkiválást.
Felhasználási területek
- Szállodák, panziók, wellness központok és egyéb vendéglátóipari egységek, mosodák,
- Társasházi lakások ivóvíz rendszerének és berendezéseinek vízkőkiválás elleni védelme
- Meleg és forró vizes fűtési rendszerek vízelőkészítése
- Nyitott és zárt hűtőkörök, klímaberendezések és légnedvesítők vízelőkészítése
- Mosodák, üvegmosók, ipari mosó berendezések vízelőkészítése
- Sör és üdítőital gyártás, valamint szeszipar lágyvíz ellátása
- Technológiai berendezések laboratóriumi és orvostechnikai egységek lágyvíz ellátása
Előnyök
- kis helyigény, kedvező ár/érték arány
- egyszerű, gyors telepítés, helyszíni beüzemelés nélkül is telepíthető
- digitális, idő- és mennyiségvezérelt automatikus működés
- 98%-ot meghaladó vízkihozatal, gazdaságos üzemeltetés, alacsony TCO
- folyamatos lágyvíz ellátás
- épületfelügyeleti és termelés irányítási rendszerekbe integrálható kivitel, opcionálisan rendelhető sószint figyeléssel
- tartós, ipari minőségű alkatrészek (USA, EU és japán gyártóktól)
- megbízható működés, hosszú élettartam, hosszú távú folyamatos alkatrész, kellékanyag és szerviz ellátás, üzemeltetési tanácsadás
Műszaki adatok
- Kapacitás [m3x°dH/regenerálás]: 1008
- Kapacitás (24 °dH / 0 °dH esetében) [m3/regenerálás]: 42
- Névleges teljesítmény [m3/h]: 11.2
- Maximális teljesítmény [m3/h]: 14
- Só igény [kg /regenerálás]: 72
- Sóoldat igény [l /regenerálás]: 360
- Gyanta térfogat [l]: 300
- Befoglaló méretek (Szé x Mé x Ma) [mm]: 1625x625x2305
- Hálózati csatlakozás [inch, külső menet]: 1.5”
- Kezelt víz csatlakozás [inch , külső menet]: 1.5″
- Csatorna csatlakozás [inch, külső menet]: 1″
- Javasolt sóoldó tartály méret: 750 l, vagy nagyobb
Üzemi adatok
- nyersvíz nyomás: 2.5 – 6 bar
- hőmérséklet: +5 – +35 °C
Elektromos adatok
- 240 V/AC 50 Hz 5-20W
- Mechanikai védettség: IP 53
Garanciális feltételek
- 2 év telephelyi garancia, vagy 500 regenerálás (amelyik előbb bekövetkezik)
Tervező partnereink részére igény esetén vízgépészeti tervek készítéséhez szükséges DWG formátumú rajzokat biztosítunk. Ilyen irányú igényét a support@aqua-filt.hu e-mailen címen jelezze!
További információk a következő linken érhetők el: Ipari vízlágyítók

