Főoldal/Ipari vízkezelő rendszerek/Ipari vízlágyító berendezések/AquaMATIC 760 Duplex folyamatos üzemű automata ipari vízlágyító berendezés

AquaMATIC 760 Duplex folyamatos üzemű automata ipari vízlágyító berendezés

4 240 892 Ft

Ajánlatot kérek

Miért tőlünk vegye?

  • 22 év tapasztalata garantálja, hogy tőlünk csak jó minőségű terméket vásárol.
  • Szaktanácsadás emailben, telefonon és személyesen is.
  • Érvényes, a hatályos jogszabályoknak megfelelő magyar nyelvű számla, garanciajegy, használati útmutató és a szükséges tanúsítványok, megfelelőségi nyilatkozatok.
  • Garanciális és garanciális időn túli szakszervíz és pótalkatrész ellátás.

Leírás

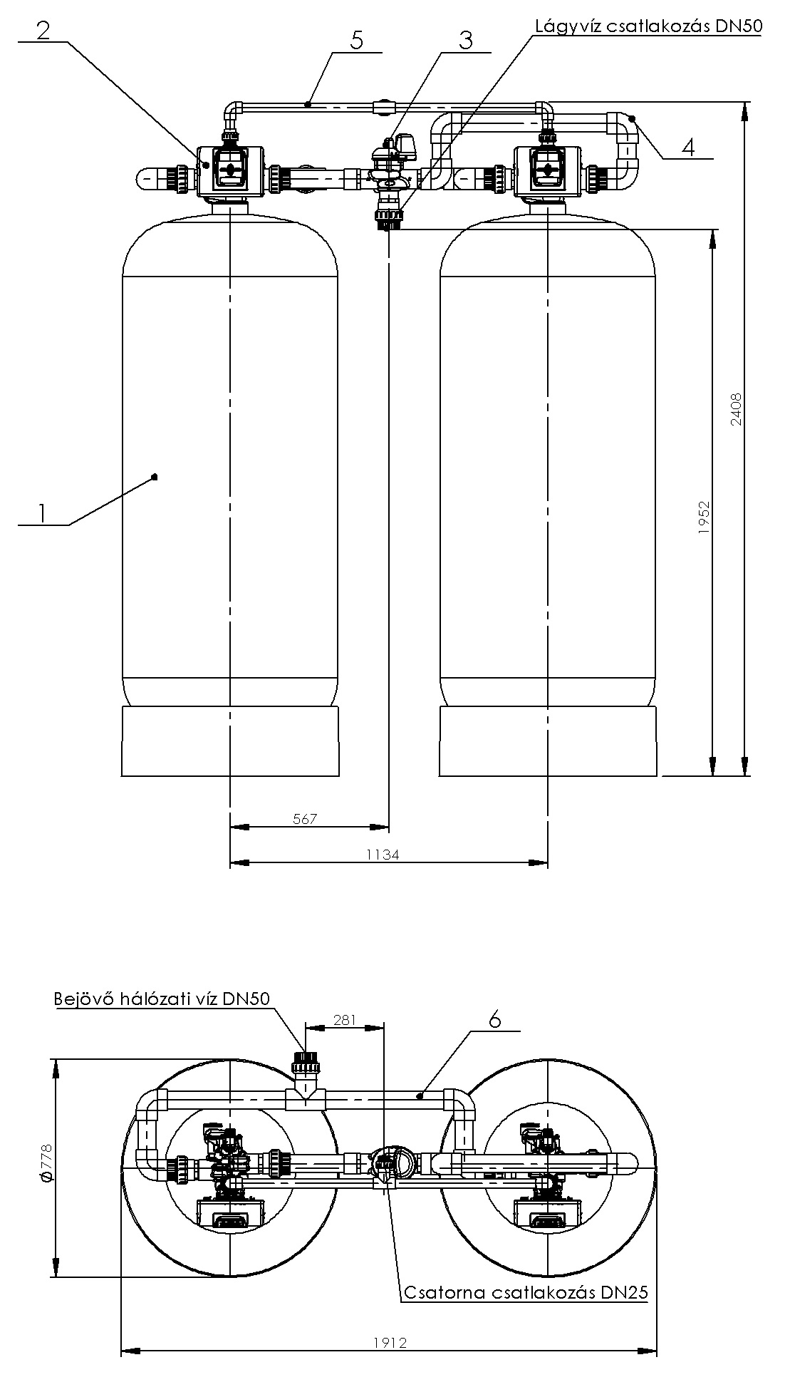
Folyamatos üzemű, digitális, idő- és mennyiségvezérelt duplaoszlopos ipari vízlágyító berendezés, 2×500 liter kationcserélő gyantával, 1680 m3x°dH/regenerálás/oszlop kapacitással, 22 m3/h átfolyásig, 2″ csatlakozással.

Az AQUAMATIC 760 DUPLEX ipari vízlágyító berendezés kétoszlopos kivitelben érhető el, a lágyvíz ellátást folyamatosan képes biztosítani.
A vízlágyító berendezésben a kemény víz ioncserélő műgyantatölteten áramlik keresztül.
A folyamat során, a víz keménységét okozó kalcium és magnézium ionok a gyantatöltetben lévő nátrium ionokra cserélődnek ki. Az így kezelt víz 90 ºC hőmérsékletig nem okoz vízkőkiválást.

Felhasználási területek
  • Szállodák, panziók, wellness központok és egyéb vendéglátóipari egységek, mosodák,
  • Társasházi lakások ivóvíz rendszerének és berendezéseinek vízkőkiválás elleni védelme
  • Meleg és forró vizes fűtési rendszerek vízelőkészítése
  • Nyitott és zárt hűtőkörök, klímaberendezések és légnedvesítők vízelőkészítése
  • Mosodák, üvegmosók, ipari mosó berendezések vízelőkészítése
  • Sör és üdítőital gyártás, valamint szeszipar lágyvíz ellátása
  • Technológiai berendezések laboratóriumi és orvostechnikai egységek lágyvíz ellátása
Előnyök
  • kis helyigény, kedvező ár/érték arány
  • egyszerű, gyors telepítés, helyszíni beüzemelés nélkül is telepíthető
  • digitális, idő- és mennyiségvezérelt automatikus működés
  • 98%-ot meghaladó vízkihozatal, gazdaságos üzemeltetés, alacsony TCO
  • folyamatos lágyvíz ellátás
  • épületfelügyeleti és termelés irányítási rendszerekbe integrálható kivitel, opcionálisan rendelhető sószint figyeléssel
  • tartós, ipari minőségű alkatrészek (USA, EU és japán gyártóktól)
  • megbízható működés, hosszú élettartam, hosszú távú folyamatos alkatrész, kellékanyag és szerviz ellátás, üzemeltetési tanácsadás
Műszaki adatok
  • Kapacitás [m3x°dH/regenerálás]: 1680
  • Kapacitás (24 °dH / 0 °dH esetében) [m3/regenerálás]: 70
  • Névleges teljesítmény [m3/h]: 17.6
  • Maximális teljesítmény [m3/h]: 22.0
  • Só igény [kg /regenerálás]: 120
  • Sóoldat igény [l /regenerálás]: 600
  • Gyanta térfogat [l]: 500
  • Befoglaló méretek (Szé x Mé x Ma) [mm]: 1910x780x2410
  • Hálózati csatlakozás [inch, külső menet]: 2”
  • Kezelt víz csatlakozás [inch , külső menet]: 2″
  • Csatorna csatlakozás [inch, külső menet]: 1″
  • Javasolt sóoldó tartály méret: 920 l, vagy nagyobb
Üzemi adatok
  • nyersvíz nyomás: 2.5 – 6 bar
  • hőmérséklet: +5 – +35 °C
Elektromos adatok
  • 240 V/AC 50 Hz 5-20W
  • Mechanikai védettség: IP 53
Garanciális feltételek
  • 2 év telephelyi garancia, vagy 500 regenerálás (amelyik előbb bekövetkezik)

Tervező partnereink részére igény esetén vízgépészeti tervek készítéséhez szükséges DWG formátumú rajzokat biztosítunk. Ilyen irányú igényét a support@aqua-filt.hu e-mailen címen jelezze!
További információk a következő linken érhetők el: Ipari vízlágyítók

AquaMATIC 760-Na-A-P-D-CK folyamatos üzemű automata ipari vízlágyító berendezés műszaki rajz (pdf formátumban)

AquaMATIC 760-Na-A-P-D-CK folyamatos üzemű automata ipari vízlágyító berendezés műszaki rajz (dwg formátumban)

Érdekelhetnek még…

Cimkék

FIPGrundfosmedence szűrőbetétmasszázsmedence szűrőadagolószivattyúvegyszeradagolóPVC-U GolyóscsapJUDOmechanikai előszűrőNivelcokomplett szűrőszűrőház betéttelmedence takaróPVC-U Karmantyúautomata szűrőPVC-U SzűkítőPVC-U Karmantyú menetesDDA szivattyúwellisself cleaning filterMedencefűtésBlueSoftDDE szivattyúfolyadék szintszabályzásGrundfos adagolószivattyúkDDC szivattyúPVC-U T-idomGrundfos alkatrészekkútvízkezelésbiztonsági medence takaróadagolószivattyú alkatrészekmedence redőnyCintropurMosodáknakTársasházaknakSzállodáknakipari vízkezelésPanzióknakvízkővízlágyítóvízlágyításipari vízlágyításlágy vízmágnesszelepmedence téliesítésPVC-U PillangószelepAquaMATICEtatronPVC-U HollanderPVC-U RotaméterszintérzékelésPVC-U Szűkítő hosszúmérőtávadóvízfertőtlenítésWater-I.D.vízalalatti porszívómedenceporszívórobot porszívóreagensivóvíz szűrőipari vízszűrőCintropur szűrőipari vízszűrésvíz-víz hőcserélőmelegvizes hőcserélős vízfűtésmedence kigészítőhőcserélőfotométerszűrőházvisszamosható szűrőPrimeLabnyomástávadóipari mágnesszelepmágnesszelep vízreparker mágnesszelepszűrőzsákérzékelőknyomásszabályzásszenzoroknyomásmérőkiemelt termékeinkvízkezelésHARTmedence fűtéselektromos medencefűtéstablettaHOTSPRINGAstralPVC tömlőtárolótartályPVC Átfolyásmérőszűrőbetétkútvízkútvíz szűréskútvíz tisztításpuffertartályPVC-U VisszacsapószelepPVC-U csővastalanításvegyszeradagolásPVC-U Könyök 90°mangánmentesítésbeltéri tartályipari műanyag tartályHőszivattyúvastalanító berendezésEuro-ClearPVC-U kötőgyűrűszintvezérlésPVC-U MembránszelepNipressPVC-U Szűkítő menetesPVC-U ragasztófertőtlenítőszervízfertőtlenítőioncserélt vízgőzkazánmaytronics dolphin automata medenceporszívó robotházi vízellátássótalanítóerőműultrahangos szintérzékelőflexibilis tömlőnagy tisztaságú vízmerülő szivattyúbúvárszivattyúPWT EasyAQUAUPWaqua purificataMXdesztillált vízkevertágyioncserélőkevertágyas sótalanítóautomata váltószelepHomokszűrő váltószeleppvc-urotaméterPoolLablakosságnakkis medencékhezPVC-U könyök 45°felfújható medencékhezCALDERAszívószárszívólándzsaivóvíz szűrőbetétpréselt PP szűrőbetétüledékszűrőivóvíz előszűrőaktívszénPVC-U Menetes dugóAquastarPeraquaPVC-U tömlőcsatlakozóvastalanítóph csökkentésbeépítőkészletultrahangos szintmérőPVC-U tömítésPVC-U lazakarimamélységi szűrőbetétszivattyú alkatrészlakossági vízellátásszintmérésAutomata szűrő alkatrészaktívszén szűrőPVC-U Kupak tokosfolyékony vízfertőtlenítőHeatTANKZodiacGreensandhomokszűrőpH mérésszűrőház kiegészítőszűrőház alkatrészAquaTANKlágyvíz tartálypneumatikus meghajtású golyóscsapklórautomata szerelvényekszintkapcsolóPVC-U Szennyfogómosható szűrőbetétklór mentes vízfertőtlenítőcsarnok párásításvízlágyító sóvízlágyítósóalgaölőClaramat sótablettaregeneráló sóBWT PerlasótablettaszűrőszövetBWT ClarosalsógranulátumDDCPKX szivattyúműanyag tartályDDEklór mérésCepexkonduktív szintkapcsolástablettasószintkapcsolástöltés vezérléstartályérintésmentes érzékelésBWT sóhőszigetelt tartálythermally insulated tankmasszázsmedenceSzűrőbetét 10"Judo alkatrészműanyag kármentőtesztkészletEasyTREKkármentő tálcakármentő edényultrahangos szinttávadóPVC-U CsappanytúpH növelésérintésmentes mérésEONE szivattyúnemesacél szűrőbetéttelpolietilén tömlőPE tömlőkapacitív szinttávadóvízóraPVC-U Ív idomPVC-U Könyök menetes 90°mágnestekercsvízelemzőpH mérőPedrolloIoncserélő gyantanyomás távadóvízelemzésDEWANklór mérőszennyezett víz szivattyúszennyvíznyomáskapcsolóarzénmentesítőaktívszenes szűrésaktívszénszűrőarzénmentesítésmednece kigészítővízvizsgálatszeleptalpszeleplábszeleplaborműszerkonduktív szondafejLovibondPyroloxmultimédiaszűrőtelepítésPVC-U karimaivóvíz fertőtlenítőkavicsszűrőGrundfos CRN szivattyúnyomásfigyeléstúlnyomás védelemGrundfos CR szivattyúsótalanításSzivattyúlágyvízanalitikai távadóPVC-U tömlővégpH csökkentőnyomásvezérlésultrahangos érzékelőivóvíz fertőtlenítésPVC-U 90° könyöklumitester smartRO membrán védelemmembrán kezelő szerDEWASILioncserevegyszer adagolóPerisztatikus adagolóbeinjektáló szelepinjektorszelepfoszfátnyomástartó szelepnyomószelepPVC-U tartálycsatlakozóteljes sótalanító berendezéslerakódásgátló szergyantaPraherciszterna szivattyúásott kút szivattyúöntözésMedence szivattyúszűrőszondaszárméréstechnikaszintérzékelőEchoTREKultrahangos távolságmérésfolyadékszint mérőfolyamatvezérlésVORTEX PROVízlágyító gyantaKationcserélő gyantareagenstablettaházi vízműJP szivattyúmanuális szűrőklór-dioxidePOOL alkatrészekPVC-U KeresztidomPVC-U idomok és szerelvényekAQUA BIGklórmentesesővíztartályvezetőképesség távadócentrifugál szűrőhomokleválasztóTORNAX PROCYCLON X PROPVC-U Kézikar zárkalibráló folyadékkombinált klórtablettapufferoldatIntex medencékhezTeflon tömlőmikrohullámú távadóPTFE tömlőuszodai keringető szivattyúGrundfos CRNE szivattyúkapacitív szintkapcsolóRecTANKjelkábelimpulzusadó kábeltartozékdigitális vízelemzőfagytestmedence fagytestjégnyomás csökkentőjégmentesítő párnamultifunkciós szelepkézi mérésmini hőszivattyúPT100hőmérséklet szabályzásszilikátnivoswitchrezgővillahőmérséklet méréspHszennyvízgyűjtőporszűrőtartályhomokszűrő szivattyúMultiDirectPool-I.D.kúpos tartályWasteTANKMD600kazánvízkültéri tartálykonduktív szintkapcsolókhomokszűrő tartályszimplafalú műanyag tartályJacuzziPID-szabályzóLovibond SpectroDirectUniverzális szabályzószárazonfutás elleni védelemLovibond MD610Lovibond MD600Váltószelep alkatrészszűrőbetét 9 3/4"PVC-U nézőüvegPH adagolószívó idomLovibond MultiDirectnyomástartó automatikamulticontSzűrőköri idomokVízforgató szivattyúszabályozástechnikavezérléstechnikaMODBUS kommunikációOxiperm OCDszivattyúvezérlőszintszabályzásWater IDvegyszerekszabad aktív klórreagens pormedence létra alkatrészszivattyú vezérlésMD610préslég tömlőtömlőszivattyúaknavízkémiaszkimmerekMedence befúvókkazánvíz kezelő szerfolyadék szintvezérléstisztító szerekalkatrészSodaStreamhidrociklonuszodavíz-kezelésmérőcsíktesztcsíklúgosító szerHypersperse MDC220UV fertőtlenítéscsírátlanítógépházkompakt vezérlővízóraaknaOmnitronicrelé kimenet kábelDryTANKSpectroDirectföldalatti műanyag tartályBefúvókPorszívó csatlakozómedence karbantartástéliesítésvízzsákIBGklór adagolóprogramozó egységLovibond MD100műanyag gépházszivattyú vezérlőöntözéstechnikauszodatechnikanyomásfokozó szivattyúGrundfos szivattyúösszkeménységnyomáscsökkentővelHomokszűrő alkatrészBaduszövetszál erősítésű tömlőszivattyú gépháztavak gépészeti rendszerenyomásmérő órákkalph távadódolphinRT2100maytronicsManuális szűrő alkatrészmezőgazdaságOV5200RC4400RV5600RO membránMD100phenol redinert gyantamasszázsmedence CÉGESGrundfos CRT szivattyúpH értékvízvisszaforgatáspárásításvíztisztításPM630PM620Perisztatikus adagoló alkatrészszűrőházkulcsvegyszer adagoló alkatrészvégállás kapcsológörgősorZennerimpulzusadós vízóraimpulzusadós vízmérőmedence világítás alkatrészaktívszenes szűrőhűtőtoronyforróvizes kazánnagynyomású kazánivóvízvízanalízismunkacsővíz pHkapacitív közelítőkapcsolóközösségi medence porszívó robotnátrium-hypoklorithypostabilizált hypooxigén megkötő szerflokkuláláspelyhesítésPDM szivattyúkapacitív érzékelőfölözőm-lúgosságMasszázsmedence alkatrészRT3200szennyvízkezelő vegyszerek adagolásaszennyvíz szagtalanításkültéri vegyszeradagoló állomásLegionellamagánönfelszívó vízszivattyúuszodai vízforgató szivattyúszűrő-forgató szivattyúfalátvezetésekprogramozóOV5300Lovibond PM620reagens tablettaélelmiszeriparLovibond PM630membránszűrésvas(II)távhővas(III)növénytermesztésOT2100szkimmerHART modemmangánmedence korlátKapaszkodókhaywardszennyvíz szivattyúszennyvízszivattyúpH növelőpH szabályzásp-lúgosságtápellátásivóvíz szűréstápegységPC MultiDirectnitrátkészletRV5300hidrodinamikus vízfertőtlenítéscentrifugálszivattyúDMB szivattyúGrundfos CRTE szivattyúRV5480IQösszes keménységBMeters